Simple Islamic Architecture Drawing

Taj Mahal Islamic Architecture In India

Taj Mahal Islamic Architecture In India

Masjid Images Drawing Nusagates

Masjid Images Drawing Nusagates

Islamic Geometric Patterns Islamic Architecture Islamic Art Pattern Png 1600x1391px Islamic Geometric Patterns Area Art Black

Islamic Geometric Patterns Islamic Architecture Islamic Art Pattern Png 1600x1391px Islamic Geometric Patterns Area Art Black

How To Draw A Mosque Youtube

How To Draw A Mosque Youtube

Islamic Beauty And Grace Inverse Architecture

Islamic Beauty And Grace Inverse Architecture

The Blue Mosque Sultanahmet Camii Istanbul Turkey Stock Illustration Download Image Now Istock

The Blue Mosque Sultanahmet Camii Istanbul Turkey Stock Illustration Download Image Now Istock

Medieval Mausoleums Of Kazakhstan Genesis Architectural Features Major Centres Sciencedirect

Medieval Mausoleums Of Kazakhstan Genesis Architectural Features Major Centres Sciencedirect

Castle Illustration Place Of Worship Mosque Drawing Green Cartoon Church Cartoon Character Building Simple Png Pngwing

Castle Illustration Place Of Worship Mosque Drawing Green Cartoon Church Cartoon Character Building Simple Png Pngwing

Islamic Architecture By Dxx Basic Definitions Muqarnas

Islamic Architecture By Dxx Basic Definitions Muqarnas

Islamic Architecture Drawing High Resolution Stock Photography And Images Alamy

Islamic Architecture Drawing High Resolution Stock Photography And Images Alamy

Types Of Minaret Architecture Blueprints Architecture Drawing Architecture

Types Of Minaret Architecture Blueprints Architecture Drawing Architecture

Mosque Clipart Simple Mosque Simple Transparent Free For Download On Webstockreview 2020

Mosque Clipart Simple Mosque Simple Transparent Free For Download On Webstockreview 2020

Green And Multicolored Floral Illustration Ornament Drawing Art Islamic Geometric Patterns Chinese Pattern Leaf Symmetry Png Pngegg

Green And Multicolored Floral Illustration Ornament Drawing Art Islamic Geometric Patterns Chinese Pattern Leaf Symmetry Png Pngegg

Islamic Geometric Patterns Wikipedia

Islamic Geometric Patterns Wikipedia

Islamic Architecture Origin History Styles Video Lesson Transcript Study Com

Islamic Architecture Origin History Styles Video Lesson Transcript Study Com

Arts Free Full Text Mathematics And The Islamic Architecture Of Cordoba Html

Arts Free Full Text Mathematics And The Islamic Architecture Of Cordoba Html

Islamic Geometric Patterns Wikipedia

Islamic Geometric Patterns Wikipedia

Islamic Art Facts And Details

Islamic Art Facts And Details

Islamic Geometric Design Broug Eric 9780500516959 Amazon Com Books

Islamic Geometric Design Broug Eric 9780500516959 Amazon Com Books

Pdf Impact Of Modern Technologies On Islamic Architecture In Malaysia And Middle East

Pdf Impact Of Modern Technologies On Islamic Architecture In Malaysia And Middle East

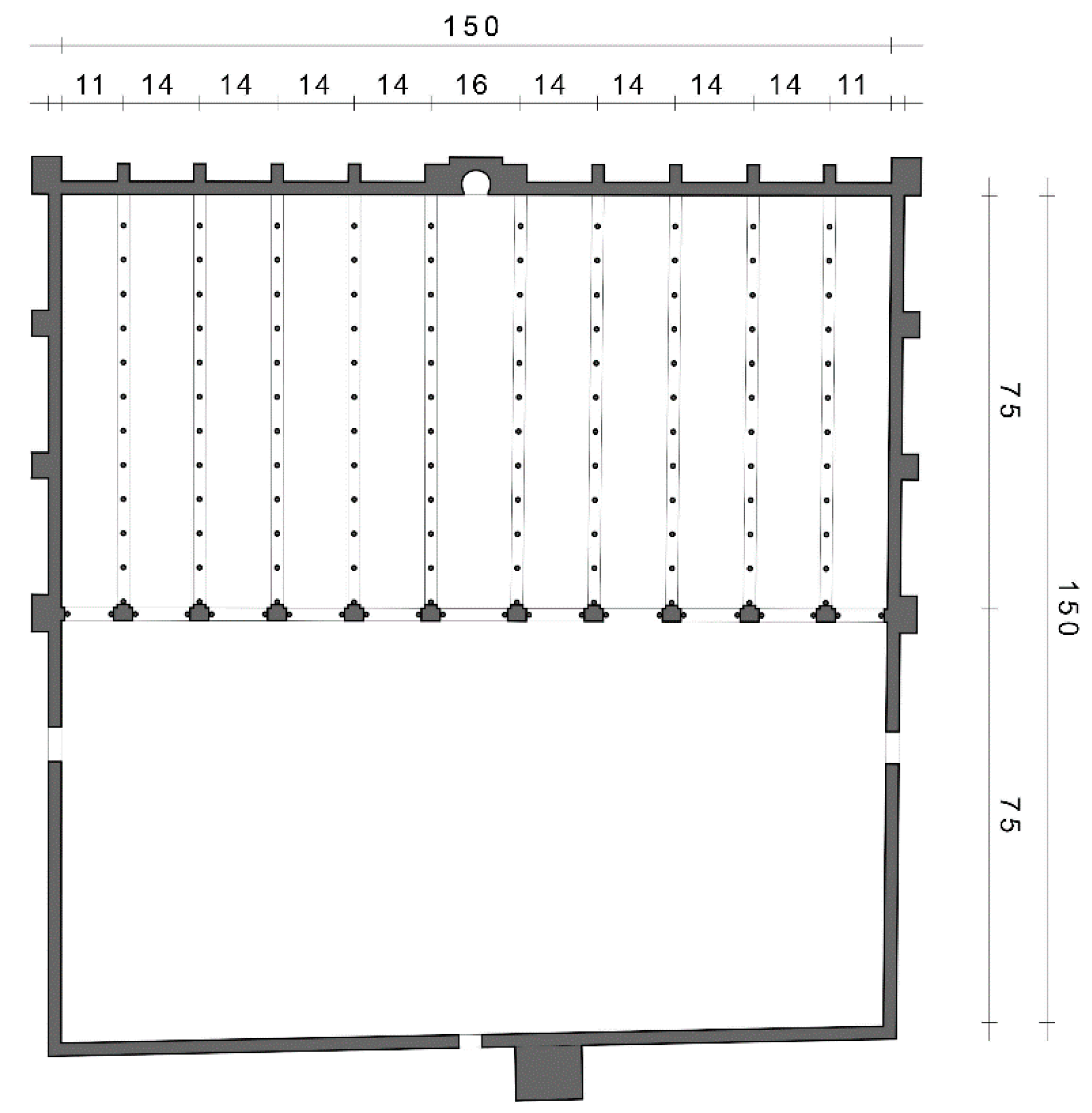
Mosque Plans Prov

Mosque Plans Prov

Https Encrypted Tbn0 Gstatic Com Images Q Tbn 3aand9gcqzyro Wjojwb1k3uftrs6maqetohzt Gar9bh6fhxi8uefncfg Usqp Cau

Https Encrypted Tbn0 Gstatic Com Images Q Tbn 3aand9gcqzyro Wjojwb1k3uftrs6maqetohzt Gar9bh6fhxi8uefncfg Usqp Cau

A History Of Mosques In Britain

A History Of Mosques In Britain

History Of Islamic Architecture

History Of Islamic Architecture

Https Cpb Us W2 Wpmucdn Com People Uwm Edu Dist 0 158 Files 2017 04 Abdullahi Embi Evolution Of Islamic Geometric Patterns 2013 1xrwn44 Pdf

Https Cpb Us W2 Wpmucdn Com People Uwm Edu Dist 0 158 Files 2017 04 Abdullahi Embi Evolution Of Islamic Geometric Patterns 2013 1xrwn44 Pdf

Mosques Their Features Architecture And Customs Facts And Details

Mosques Their Features Architecture And Customs Facts And Details

History Of Islamic Architecture

History Of Islamic Architecture

Candalepas Associates Completes Concrete Punchbowl Mosque In Sydney

Candalepas Associates Completes Concrete Punchbowl Mosque In Sydney

Arts Free Full Text Mathematics And The Islamic Architecture Of Cordoba Html

Arts Free Full Text Mathematics And The Islamic Architecture Of Cordoba Html

Https Encrypted Tbn0 Gstatic Com Images Q Tbn 3aand9gct9indoolhg0fyobmkthzxuwhqn0mdcbtstr7 5yasj8dsvyk9 Usqp Cau

Https Encrypted Tbn0 Gstatic Com Images Q Tbn 3aand9gct9indoolhg0fyobmkthzxuwhqn0mdcbtstr7 5yasj8dsvyk9 Usqp Cau

Islamic Architecture Dome Sketches Clip Art Library

Islamic Architecture Dome Sketches Clip Art Library

Pin On Muqarnas

Pin On Muqarnas

Islamic Architecture Drawing High Resolution Stock Photography And Images Alamy

Islamic Architecture Drawing High Resolution Stock Photography And Images Alamy

Islamic Architecture By Dxx Basic Definitions Muqarnas

Islamic Architecture By Dxx Basic Definitions Muqarnas

Islamic Architecture By Dxx Basic Definitions Muqarnas

Islamic Architecture By Dxx Basic Definitions Muqarnas

Capital Architecture Britannica

Capital Architecture Britannica

Http Alfozanaward Org Wp Content Uploads 2019 01 Mosques Around The World Pdf

Http Alfozanaward Org Wp Content Uploads 2019 01 Mosques Around The World Pdf

Arabic Islamic Geometry 01

Arabic Islamic Geometry 01

Islamic Geometric Patterns Religious Influences Examples Video Lesson Transcript Study Com

Islamic Geometric Patterns Religious Influences Examples Video Lesson Transcript Study Com

A Journey Through Islamic Architecture

A Journey Through Islamic Architecture

Islamic Drawing Stock Illustrations 22 798 Islamic Drawing Stock Illustrations Vectors Clipart Dreamstime

Islamic Drawing Stock Illustrations 22 798 Islamic Drawing Stock Illustrations Vectors Clipart Dreamstime

Learn How To Draw A Mosque Islam Step By Step Drawing Tutorials

Learn How To Draw A Mosque Islam Step By Step Drawing Tutorials

Architecture Wikipedia

Architecture Wikipedia

Pin By Ilayda Egel On Sketch Islamic Artwork Architecture Sketch Children Sketch

Pin By Ilayda Egel On Sketch Islamic Artwork Architecture Sketch Children Sketch

Islamic Architecture Parts Of A Mosque

Islamic Architecture Parts Of A Mosque

50 Muqarnas Images Islamic Art Islamic Pattern Islamic Architecture

50 Muqarnas Images Islamic Art Islamic Pattern Islamic Architecture

The Museum Of Islamic Art Arcspace Com

The Museum Of Islamic Art Arcspace Com

Introduction To Geometry Art Of Islamic Pattern

Introduction To Geometry Art Of Islamic Pattern

Crafts In Islamic Architecture Islamic Arts And Architecture Islamic Art Art And Architecture Architecture Drawing

Crafts In Islamic Architecture Islamic Arts And Architecture Islamic Art Art And Architecture Architecture Drawing

History Of Islamic Architecture

History Of Islamic Architecture

Collections Cad Drawing Dwg Files Archnet

Collections Cad Drawing Dwg Files Archnet

Mosque Design Dezeen

Mosque Design Dezeen

Https Brill Com Downloadpdf Journals Rart 1 4 Article P62 5 Xml

Https Brill Com Downloadpdf Journals Rart 1 4 Article P62 5 Xml

Mosque Layout Design An Analytical Study Of Mosque Layouts In The Early Ottoman Period Sciencedirect

Mosque Layout Design An Analytical Study Of Mosque Layouts In The Early Ottoman Period Sciencedirect

Mosques Are Traditionally Known For Their Splendidly Elaborate Architecture With Elegant Halls Courtyards And N Mosque Art Mosque Drawing Islamic Art Canvas

Mosques Are Traditionally Known For Their Splendidly Elaborate Architecture With Elegant Halls Courtyards And N Mosque Art Mosque Drawing Islamic Art Canvas

New Discoveries In The Islamic Complex Of Mathematics Architecture And Art Muslim Heritagemuslim Heritage

New Discoveries In The Islamic Complex Of Mathematics Architecture And Art Muslim Heritagemuslim Heritage

The History Of Art And Architecture In The Islamic World Brewminate

The History Of Art And Architecture In The Islamic World Brewminate

Https Dergipark Org Tr Tr Download Article File 499821

Https Dergipark Org Tr Tr Download Article File 499821

The Basic Design Elements Of A Simple Mosque A Plan And B Download Scientific Diagram

The Basic Design Elements Of A Simple Mosque A Plan And B Download Scientific Diagram

Muqarnas School Of Islamic Geometric Designschool Of Islamic Geometric Design

Muqarnas School Of Islamic Geometric Designschool Of Islamic Geometric Design

Islamic Architecture By Dxx Basic Definitions Muqarnas

Islamic Architecture By Dxx Basic Definitions Muqarnas

Islamic Architecture Drawing High Resolution Stock Photography And Images Alamy

Islamic Architecture Drawing High Resolution Stock Photography And Images Alamy

The Stunning Beauty Of Islamic Geometric Pattern By Ali Kayaspor However Mathematics Medium

The Stunning Beauty Of Islamic Geometric Pattern By Ali Kayaspor However Mathematics Medium

How To Draw A Mosque Easy Drawing Coloring Page Youtube

How To Draw A Mosque Easy Drawing Coloring Page Youtube

Indo Islamic Architecture A Concise History By Takeo Kamiya

Indo Islamic Architecture A Concise History By Takeo Kamiya

Islamic Art Lesson For Kids A Look At Arabic Tiles Kid World Citizen

Islamic Art Lesson For Kids A Look At Arabic Tiles Kid World Citizen

The Stunning Beauty Of Islamic Geometric Pattern By Ali Kayaspor However Mathematics Medium

The Stunning Beauty Of Islamic Geometric Pattern By Ali Kayaspor However Mathematics Medium

Community Space And Time In Islamic Architecture Faith Form

Community Space And Time In Islamic Architecture Faith Form

Mosque Islamic Building Drawing High Res Vector Graphic Getty Images

Mosque Islamic Building Drawing High Res Vector Graphic Getty Images

Islamic Architecture Of Andalusia

Islamic Architecture Of Andalusia

Https Encrypted Tbn0 Gstatic Com Images Q Tbn 3aand9gct9indoolhg0fyobmkthzxuwhqn0mdcbtstr7 5yasj8dsvyk9 Usqp Cau

Https Encrypted Tbn0 Gstatic Com Images Q Tbn 3aand9gct9indoolhg0fyobmkthzxuwhqn0mdcbtstr7 5yasj8dsvyk9 Usqp Cau

Vector Islamic Architecture Architecture Yellow Muslim Png Transparent Clipart Image And Psd File For Free Download

Vector Islamic Architecture Architecture Yellow Muslim Png Transparent Clipart Image And Psd File For Free Download

Set Of Common Types Of Architectural Arches Frame Icons With Their Names Stock Vector Islamic Architecture Arch Architecture Architecture

Set Of Common Types Of Architectural Arches Frame Icons With Their Names Stock Vector Islamic Architecture Arch Architecture Architecture

How To Draw Mosque Step By Step Youtube

How To Draw Mosque Step By Step Youtube

Mosque Layout Design An Analytical Study Of Mosque Layouts In The Early Ottoman Period Sciencedirect

Mosque Layout Design An Analytical Study Of Mosque Layouts In The Early Ottoman Period Sciencedirect

Islamic Architecture Sketches Architecture Painting Architecture Sketch Architecture Drawing

Islamic Architecture Sketches Architecture Painting Architecture Sketch Architecture Drawing

Da Chang Muslim Cultural Center Architectural Design Research Institute Of Scut Arch2o Com

Da Chang Muslim Cultural Center Architectural Design Research Institute Of Scut Arch2o Com

Pattern As Cosmology In Islamic Geometric Art

Pattern As Cosmology In Islamic Geometric Art

The Museum Of Islamic Art Arcspace Com

The Museum Of Islamic Art Arcspace Com

Muqarnas School Of Islamic Geometric Designschool Of Islamic Geometric Design

Muqarnas School Of Islamic Geometric Designschool Of Islamic Geometric Design

Pdf Impact Of Modern Technologies On Islamic Architecture In Malaysia And Middle East

Pdf Impact Of Modern Technologies On Islamic Architecture In Malaysia And Middle East

Evolution Of Islamic Geometric Patterns Sciencedirect

Evolution Of Islamic Geometric Patterns Sciencedirect

Halal Islamic Geometric Patterns Islamic Architecture Geometric Frame Transparent Background Png Clipart Hiclipart

Halal Islamic Geometric Patterns Islamic Architecture Geometric Frame Transparent Background Png Clipart Hiclipart

Islamic Architecture Drawing High Resolution Stock Photography And Images Alamy

Islamic Architecture Drawing High Resolution Stock Photography And Images Alamy

Islamic Ornament Wikipedia

Islamic Ornament Wikipedia

Arabic Islamic Geometry 02

Arabic Islamic Geometry 02

Drawing Blue Mosk By Studio Ellessi Mosque Art Mosque Drawing Architecture Sketch

Drawing Blue Mosk By Studio Ellessi Mosque Art Mosque Drawing Architecture Sketch

Mosque Layout Design An Analytical Study Of Mosque Layouts In The Early Ottoman Period Sciencedirect

Mosque Layout Design An Analytical Study Of Mosque Layouts In The Early Ottoman Period Sciencedirect

Islamic Architecture Drawing High Resolution Stock Photography And Images Alamy

Islamic Architecture Drawing High Resolution Stock Photography And Images Alamy

Https Brill Com Downloadpdf Journals Rart 1 4 Article P62 5 Xml

Https Brill Com Downloadpdf Journals Rart 1 4 Article P62 5 Xml

Https Cpb Us W2 Wpmucdn Com People Uwm Edu Dist 0 158 Files 2017 04 Abdullahi Embi Evolution Of Islamic Geometric Patterns 2013 1xrwn44 Pdf

Https Cpb Us W2 Wpmucdn Com People Uwm Edu Dist 0 158 Files 2017 04 Abdullahi Embi Evolution Of Islamic Geometric Patterns 2013 1xrwn44 Pdf

Mosque Drawing Images Stock Photos Vectors Shutterstock

Mosque Drawing Images Stock Photos Vectors Shutterstock

New Discoveries In The Islamic Complex Of Mathematics Architecture And Art Muslim Heritagemuslim Heritage

New Discoveries In The Islamic Complex Of Mathematics Architecture And Art Muslim Heritagemuslim Heritage

How To Draw A Mosque Step By Step Easy For Kids Colouring Pages For Islamic Drawing Tutorial Youtube

How To Draw A Mosque Step By Step Easy For Kids Colouring Pages For Islamic Drawing Tutorial Youtube

Https Www Getty Edu Publications Virtuallibrary Pdf 9780892363353 Pdf

Https Www Getty Edu Publications Virtuallibrary Pdf 9780892363353 Pdf

Islamic Art Png Easy Islamic Art Beautiful Islamic Art Abstract Islamic Art Simple Islamic Art Patterns Islamic Art Architecture Modern Islamic Art Islamic Art Drawings Famous Islamic Art Islamic Art And

Islamic Art Png Easy Islamic Art Beautiful Islamic Art Abstract Islamic Art Simple Islamic Art Patterns Islamic Art Architecture Modern Islamic Art Islamic Art Drawings Famous Islamic Art Islamic Art And

Https Dergipark Org Tr Tr Download Article File 499821

Https Dergipark Org Tr Tr Download Article File 499821

Https Encrypted Tbn0 Gstatic Com Images Q Tbn 3aand9gcsk139 3oy5cf9rbfhe34gnzt6x3rzkls7mytiufhkb3jabbiqb Usqp Cau

Https Encrypted Tbn0 Gstatic Com Images Q Tbn 3aand9gcsk139 3oy5cf9rbfhe34gnzt6x3rzkls7mytiufhkb3jabbiqb Usqp Cau

Floor Plan Of Malika Safiyya Mosque Archnet Mosque Design Mosque Architecture Mosque

Floor Plan Of Malika Safiyya Mosque Archnet Mosque Design Mosque Architecture Mosque

Evolution In Islamic Architecture Tradition Modernity Development By Kabeer Nijamudeen H Issuu

Evolution In Islamic Architecture Tradition Modernity Development By Kabeer Nijamudeen H Issuu

Muslim Rule And Compass The Magic Of Islamic Geometric Design Mathematics The Guardian

Muslim Rule And Compass The Magic Of Islamic Geometric Design Mathematics The Guardian

Pattern Lesson 5

Pattern Lesson 5

Simple Gothic Architecture Drawing Google Search Gothicarchitecture Architectura Gothic Architecture Drawing Architecture Drawing Gothic Style Architecture

Simple Gothic Architecture Drawing Google Search Gothicarchitecture Architectura Gothic Architecture Drawing Architecture Drawing Gothic Style Architecture

Islamic Art And Architecture

Islamic Art And Architecture